房源图片
联系商家

无需房东确认就可立即预约

Example of 18721699126
  • 人数
    13-26
  • 平日
    8:00 - 23:00
  • 周末
    8:00 - 23:00
  • 类型
    -
  • 地址
    合肥市包河区未来塔
预约方便

无需房东确认就可立即预约

容易
回答时间 几小时内

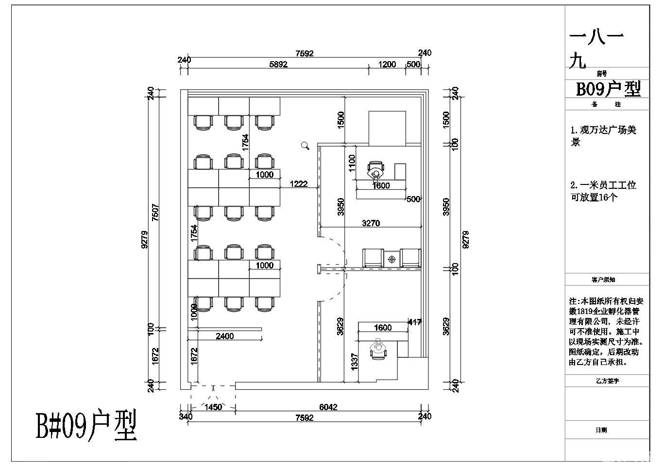
滨湖区两间办公室精装修,万达未来塔108平(租)

纯写字楼,可注册,可分割,近地铁

东南朝向,湖景办公,双面采光,房型方正,视野开阔

双开电子门,整面大理石背景墙,双玻璃隔断效果好

联系人邵女士:15215514107

主要用途
办公

117.307948LNG 31.704604LAT

路线

地址

合肥市包河区未来塔