房源图片
联系商家

无需房东确认就可立即预约

Example of 18721699126
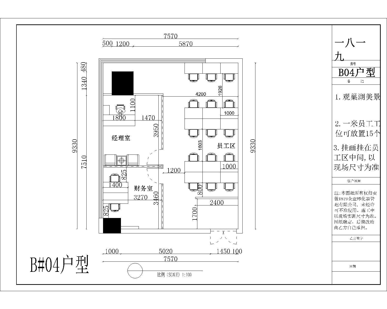
  • 人数
    22-45
  • 平日
    8:00 - 23:00
  • 周末
    8:00 - 23:00
  • 类型
    -
  • 地址
    庐州大道/贵阳路路口
预约方便

无需房东确认就可立即预约

容易
回答时间 几小时内

万达未来塔巢湖全景包家具随时看房,融创乐园万达未来塔精装甲级(租)

纯写字楼,近地铁,可注册,可分割,联系人邱女士17718190188
主要用途
办公

116.413483LNG 39.911043LAT

路线

地址

庐州大道/贵阳路路口