房源图片
联系商家

无需房东确认就可立即预约

Example of 18721699126
  • 人数
    81-163
  • 平日
    8:00 - 23:00
  • 周末
    8:00 - 23:00
  • 类型
    -
  • 地址
    合肥市蜀山区南城创谷
预约方便

无需房东确认就可立即预约

容易
回答时间 几小时内

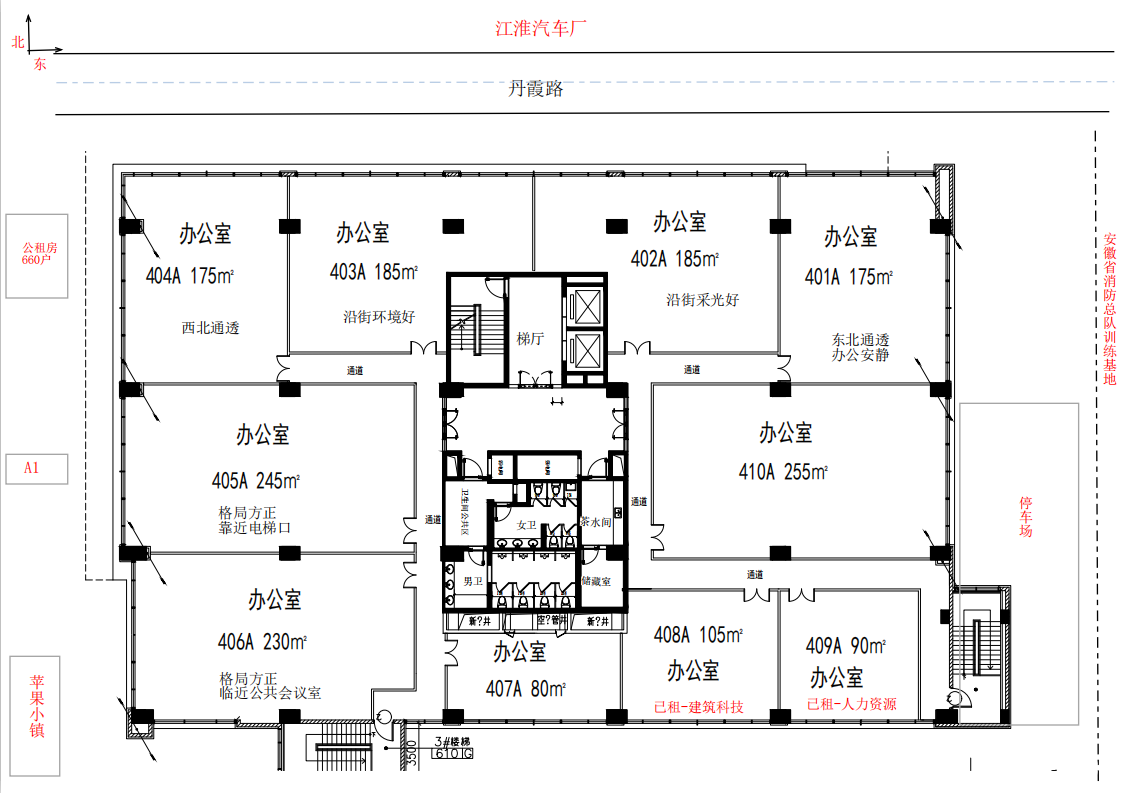
经开区精装中央空调交通便利,南城创谷490平(租)

纯写字楼,可注册,可分割,近地铁

地理位置好,园区环境优美,出入方便,享受政府补贴

联系人鲍女士:13075586323

主要用途
办公

117.228376LNG 31.773579LAT

路线

地址

合肥市蜀山区南城创谷